【江戸川区・西葛西駅徒歩4分】飲食店可/34.69坪・1フロア1テナント/フリーレント1ヶ月
情報更新日:2026年03月17日
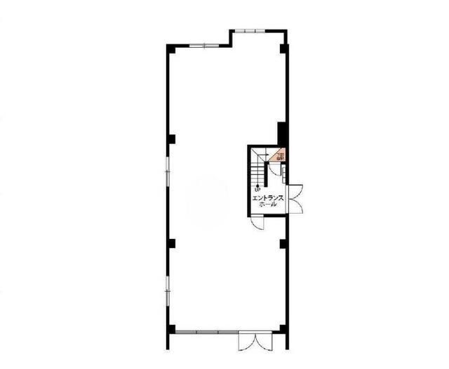
物件概要
アピールポイント
フリーレント:1ヶ⽉,駐輪場有(無料),主要採光⾯:南向き,飲⾷店可,1フロア1テナント,トイレ,都市ガス,動⼒あり,ビルトインエアコン,電動シャッター,⽕災警報器(報知機)
特記事項・備考
保険等:要 更新料:新賃料 1ヶ⽉ 賃貸保証:加⼊要 賃料の
1ヶ⽉分(税込) 利⽤駅1:東京メトロ東⻄線 葛⻄ 徒歩13分
地図・アクセス
この条件に似ている物件
-
【江戸川区・小岩駅徒歩1分】飲食可スケルトン/1フロア1テナント/EVあり/24時間可
賃料
330,000円
最寄駅
小岩駅(徒歩1分)
坪数
36.51坪(地上2階)
-
【江戸川区 葛西 居抜き】駅徒歩2分/1階路面26坪・賃料39.6万円/韓国料理店居抜き(競合少・即営業可)
賃料
396,000円
最寄駅
葛西駅(徒歩2分)
坪数
26.86坪(地上1階)
-
【江戸川区・葛西駅徒歩4分】葛西駅西通り沿いの路面ビストロ居抜き物件
賃料
352,000円
最寄駅
葛西駅(徒歩5分)
坪数
24.2坪(地上1階)
-
【平井 居抜き物件】駅徒歩1分/中華料理店居抜き約19坪/駅前ビル2階/居酒屋・中華・エスニック向け飲食店物件(江戸川区)
賃料
330,000円
最寄駅
平井駅(徒歩1分)
坪数
19.04坪(地上2階)
-
【江戸川区 居抜き物件】葛西駅徒歩1分/中華居酒屋居抜き16坪/駅前角地・看板多数で視認性◎/葛西飲食店居抜き/飲食店開業向け貸店舗
賃料
330,000円
最寄駅
葛西駅(徒歩1分)
坪数
16.6坪(地上2階)
-
【江戸川区】新小岩徒歩7分/新小岩ルミエール商店街通り沿い/ベトナム料理店/約13.73坪
賃料
275,000円
最寄駅
新小岩駅(徒歩7分)
坪数
13.73坪(地上1階)
-
葛西駅徒歩11分 内装美麗な整体院の居抜き物件!
賃料
198,000円
最寄駅
葛西駅(徒歩11分)
坪数
9.8坪(地上1階)
-
【葛西駅 徒歩5分 居抜き店舗】1階路面/家賃14.3万円・約9坪|江戸川区飲食店開業向け
賃料
143,000円
最寄駅
葛西駅(徒歩5分)
坪数
9坪(地上1階)