【大田区・池上駅徒歩5分】 重飲食OK/24時間利用可/1階路面スケルトン物件
情報更新日:2026年02月13日
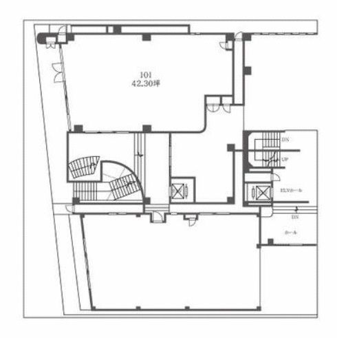
物件概要
アピールポイント
飲⾷店可,スケルトン,24時間利⽤可,⼟⽇・祝⽇利⽤可,耐震構造(新耐震基
準),個別空調,光ファイバー,24時間セキュリティー,エレベーター,エレベ
ーター2基以上
特記事項・備考
「ツインウッドスクエア」 重飲⾷可!
「ツインウッドスクエア」に既に⼊居済の焼⾁屋・美容院・薬局・病院(内科・外科・整形外科)
・英会話スクール ・フィットネス・トランクルーム・ゴルフ練習場・保育園等NG
保険等:要 更新料:新賃料 1ヶ⽉
賃貸保証:加⼊要 1ヶ⽉ 駐⾞場備考:現在満⾞
駐車場:有 38,500円/⽉
地図・アクセス
この条件に似ている物件
-
【大田区】大森駅徒歩1分/4階/駅すぐ/人流多数/角地/新築物件/分割貸可/約60.2坪
賃料
1,760,000円
最寄駅
大森駅(徒歩1分)
坪数
60.2坪(地上4階)
-
【大田区】大森駅徒歩1分/3階/駅すぐ/人流多数/角地/新築物件/分割貸可/約60.2坪
賃料
1,870,000円
最寄駅
大森駅(徒歩1分)
坪数
60.2坪(地上3階)
-
【大田区】大森駅徒歩1分/2階/駅すぐ/人流多数/角地/新築物件/分割貸可/約60.2坪
賃料
1,980,000円
最寄駅
大森駅(徒歩1分)
坪数
60.2坪(地上2階)
-
【大田区】蒲田駅徒歩1分/駅近ダーツバー/居抜き物件/19坪
賃料
374,000円
最寄駅
蒲田駅(徒歩1分)
坪数
19坪(地下階)
-
【大森 居抜き】駅徒歩2分/初期費用400万円以下・約11.7坪/造作110万円に値下げ・即営業可の小箱居酒屋(大田区・飲食店開業向け)
賃料
319,000円
最寄駅
大森駅(徒歩2分)
坪数
11.78坪(地上4階)
-
【大田区】大森駅6分/大森商店街沿い/内装美麗/出店業態ご相談可/旧スイーツ店居抜き物件/約11.21坪
賃料
231,000円
最寄駅
大森駅(徒歩6分)
坪数
11.21坪(地上1階)
-
【大田区 長原駅 徒歩1分 居抜き】駅出てすぐ1階路面/電気ピザ窯付きイタリアン居抜き/賃料26.4万円・約10坪
賃料
264,000円
最寄駅
長原駅(徒歩1分)
坪数
10坪(地上1階)