ロゴ画像

03-6427-1827

受付時間 9:00 - 18:00

【大阪市・日本橋4分/なんば8分】2駅利用可 1階路面 好立地店舗(22坪)

情報更新日:2026年02月16日
【大阪市・日本橋4分/なんば8分】2駅利用可 1階路面 好立地店舗(22坪)
【大阪市・日本橋4分/なんば8分】2駅利用可 1階路面 好立地店舗(22坪)
【大阪市・日本橋4分/なんば8分】2駅利用可 1階路面 好立地店舗(22坪)
【大阪市・日本橋4分/なんば8分】2駅利用可 1階路面 好立地店舗(22坪)

物件概要

階建て

地上5階 地下1階

階数/面積

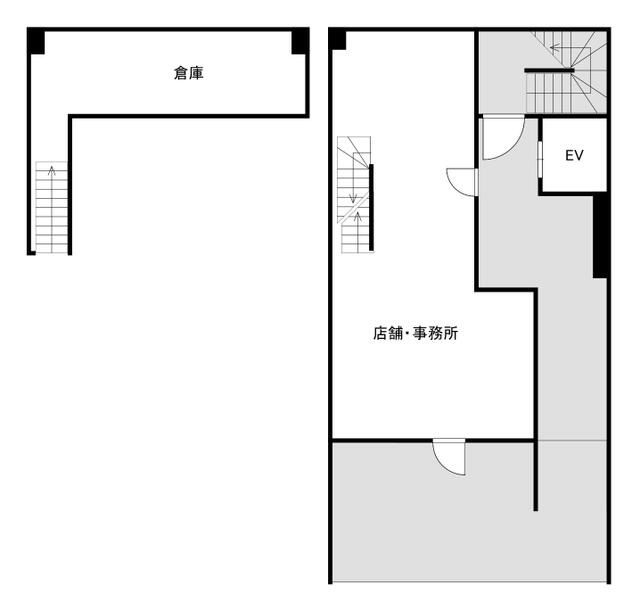
1階 / 約22.11坪 (73.08㎡)

構造

鉄⾻造

建物名

(会員限定)

契約期間

普通借家 2年

権利金・礼金

2 ヶ月

物件の状態

スケルトン

共益・管理費

0円

前業態

居酒屋

償却

0 ヶ月

更新料

相談

築年数

34年

取引業態

一般

アピールポイント

飲⾷店可 利⽤駅1:⼤阪メトロ堺筋線 ⽇本橋 徒歩4分 利⽤駅2:⼤阪メトロ御堂筋線 なんば 徒歩8分

特記事項・備考

保険等:要 賃貸保証:加⼊要 賃料の100% 利⽤駅1:⼤阪メトロ堺筋線 ⽇本橋 徒歩4分 利⽤駅2:⼤阪メトロ御堂筋線 なんば 徒歩8分

地図・アクセス

詳しい場所はログイン後に表示されます

会員登録(無料)をすると、地図での正確な立地確認や、非公開物件の詳細情報をご覧いただけます。