ロゴ画像

03-6427-1827

受付時間 9:00 - 18:00

【兵庫県神戸市長田区】JR神戸線 鷹取駅から徒歩1分/24時間利用可能/動力あり/居酒屋居抜き物件/約28.34坪

情報更新日:2025年11月01日
【兵庫県神戸市長田区】JR神戸線 鷹取駅から徒歩1分/24時間利用可能/動力あり/居酒屋居抜き物件/約28.34坪
【兵庫県神戸市長田区】JR神戸線 鷹取駅から徒歩1分/24時間利用可能/動力あり/居酒屋居抜き物件/約28.34坪
【兵庫県神戸市長田区】JR神戸線 鷹取駅から徒歩1分/24時間利用可能/動力あり/居酒屋居抜き物件/約28.34坪
【兵庫県神戸市長田区】JR神戸線 鷹取駅から徒歩1分/24時間利用可能/動力あり/居酒屋居抜き物件/約28.34坪

物件概要

階建て

地上4階

階数/面積

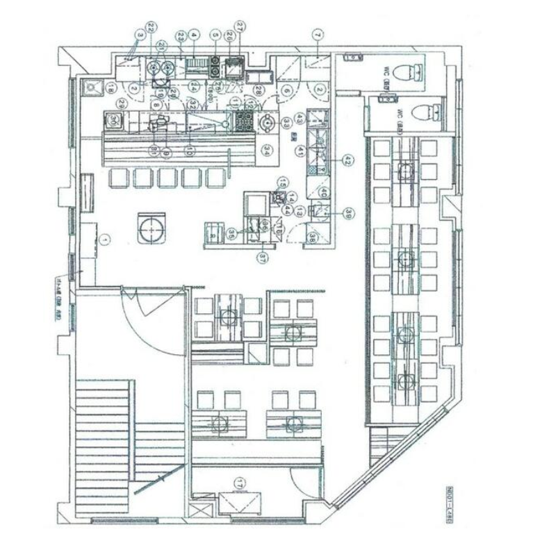
2階 / 約28.34坪 (93.69㎡)

構造

建物名

(会員限定)

契約期間

普通借家 2年

権利金・礼金

1,100,000 円

物件の状態

居抜き

共益・管理費

相談

前業態

居酒屋

償却

相談

更新料

相談

築年数

49年

取引業態

一般

最寄り駅

アピールポイント

飲⾷店可 居抜き 24時間利⽤可 ⼟曜⽇利⽤可 ⼟⽇・祝⽇利⽤可 動⼒あり

特記事項・備考

鶏豚料理、居酒屋の居抜き店舗 スケルトン渡し相談可。 残置物の性能保証無し、ダクト有り。 退去時は前⼊居者の設備も含め原則スケルトン返し。 貸主から適格請求書の発⾏はありません。 利⽤駅1:⼭陽電鉄本線 東須磨 徒歩18分

地図・アクセス

詳しい場所はログイン後に表示されます

会員登録(無料)をすると、地図での正確な立地確認や、非公開物件の詳細情報をご覧いただけます。

この条件に似ている物件

この条件に似ている物件は現在ありません。